Ограждение ТИП П-2,5-М-01-В1

Высота ограждения: 2,5 метра

Серия ограждения: ТИП П-2,5-М-01-В1

Типовое металлическое сварное ограждение для установки в Москве, утверждённое постановлением Правительства Москвы от 19 июля 2019 года №900-ПП «О порядке установки на территории города Москвы отдельных ограждающих конструкций».

Состав комплекта типового ограждения: секции, столбы, крепеж, распашные или откатные ворота, калитка

Варианты установки ограждения организации:

1. бетонированием столбов согласно проекту заказчика

2. установка на винтовых сваях

3 100
3 100

Высота ограждения: 2,5 метра

Серия ограждения: ТИП П-2,5-М-01-В1

Типовое металлическое сварное ограждение для установки в Москве, утверждённое постановлением Правительства Москвы от 19 июля 2019 года №900-ПП «О порядке установки на территории города Москвы отдельных ограждающих конструкций».

Состав комплекта типового ограждения: секции, столбы, крепеж, распашные или откатные ворота, калитка

Варианты установки ограждения организации:

1. бетонированием столбов согласно проекту заказчика

2. установка на винтовых сваях

  • Описание

    Ограждение ТИП П-2,5-М-01-В1 от производителя от 3011руб

    Ограждение ТИП П-2,5-М-01-В1 — типовое металлическое сварное решение высотой 2,5 метра для установки в Москве. Его выбирают, когда нужно быстро и аккуратно закрыть периметр объекта, ограничить доступ на территорию и организовать контролируемый вход и въезд. Важно, чтобы конструкция выглядела опрятно и не требовала переделок после монтажа. Секционный формат удобен: линию можно собирать поэтапно и менять конфигурацию без капитальной переделки всего контура. Высота 2,5 метра помогает отделить рабочую или складскую зону от проходных участков и сделать границы территории заметными. Конструкция дисциплинирует потоки людей и транспорта: становится понятнее, где проход, где въезд, а где зона с ограниченным доступом. При этом секции можно наращивать, переносить и быстро закрывать «слабые места» линии, если на объекте меняются задачи. Ограждение подходит для:

    • строительных площадок и временных зон ограничения доступа;
    • территорий организаций, складов, производственных и хозяйственных зон;
    • участков, где требуется контроль прохода персонала и въезда транспорта.

    Типовая серия для Москвы (ПП №900-ПП)

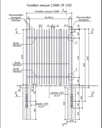
    Серия ограждения: ТИП П-2,5-М-01-В1. Она относится к типовым решениям, утвержденным постановлением Правительства Москвы от 19 июля 2019 года №900-ПП «О порядке установки на территории города Москвы отдельных ограждающих конструкций». Проще говоря, это понятный «стандарт» для Москвы: заранее ясно, как будет выглядеть ограждающая линия и из каких элементов она собирается. Если на территории действуют внутренние требования по доступу и безопасности, типовую серию проще увязать с КПП, маршрутами персонала и зоной разгрузки. Тогда ограждение работает не только как визуальная граница, но и как часть логистики объекта.

    Состав комплекта ограждения организации

    Состав комплекта подбирается под длину периметра и задачи на объекте. Как правило, в комплект закладывают элементы для прямых участков и входных групп:

    • секции;
    • столбы;
    • крепеж;
    • распашные или откатные ворота;
    • калитку.

    Для точного расчета заранее задают протяженность линии, количество въездов, ширину ворот, место калитки и требования к проездам. Если есть углы, перепады по высоте или ограничения по подъезду техники, это лучше учесть до монтажа — так меньше «подгонки» на объекте. Отдельно стоит продумать режим эксплуатации: будут ли регулярные поставки, нужна ли калитка для персонала, какое направление открывания удобнее и где оставить площадку для маневра.

    Варианты установки ограждения серии П-2,5-М-01-В1

    Варианты установки ограждения организации:

    1. Бетонирование столбов согласно проекту заказчика — для стабильной геометрии и долгосрочного периметра.
    2. Установка на винтовых сваях — когда важны сроки и нужно сократить земляные работы; на ряде участков упрощает монтаж.

    Способ установки подбирают по условиям объекта: тип грунта, наличие коммуникаций, требования к срокам и будущая нагрузка на зону въезда. Если планируется активное движение грузового транспорта, важно заранее заложить достаточную ширину проезда и безопасные радиусы разворота. Распашные ворота подходят, если есть место для створок и понятная траектория въезда. Откатные выбирают, когда важно не занимать пространство перед проездом и сохранить свободную площадку. Калитку обычно размещают ближе к пешеходному маршруту, чтобы проход людей не пересекался с техникой. При выборе ширины ворот лучше ориентироваться на реальную технику на объекте, а не только на легковые автомобили.

    Как проходит заказ ограждения, монтаж и приемка работ

    Стандартный процесс обычно включает:

    • сбор вводных и выезд на замер;
    • согласование схемы периметра, ворот и калитки;
    • подготовку комплекта и доставку на объект;
    • монтаж выбранным способом и проверку работы входных групп.

    После установки стоит пройтись по линии секций, убедиться в ровности и надежности креплений, а также проверить, что ворота и калитка открываются без заеданий и не мешают проезду. Перед монтажом полезно подготовить:

    • схему участка с ориентировочными размерами линии;
    • точки ворот и калитки, требования к ширине проездов;
    • информацию о перепадах высот и препятствиях вдоль периметра;
    • ограничения по доступу техники и режиму работы на объекте.

    Чек-лист приемки:

    • ровность линии и отсутствие перекосов секций;
    • надежность крепежа и соединений;
    • плавную работу ворот и калитки, корректное запирание;
    • свободный проезд техники и безопасный проход людей;
    • соответствие фактической конфигурации согласованной схеме.

    Серия ТИП П-2,5-М-01-В1 высотой 2,5 метра помогает быстро организовать ограждающую линию и контроль доступа на территории в Москве. Комплект собирается под задачу (секции, столбы, крепеж, ворота и калитка), а способ установки выбирается по условиям объекта: бетонирование по проекту или монтаж на винтовых сваях.

  • Комментарии 0

Ограждение ТИП П-2,5-М-01-В1 от производителя от 3011руб

Ограждение ТИП П-2,5-М-01-В1 — типовое металлическое сварное решение высотой 2,5 метра для установки в Москве. Его выбирают, когда нужно быстро и аккуратно закрыть периметр объекта, ограничить доступ на территорию и организовать контролируемый вход и въезд. Важно, чтобы конструкция выглядела опрятно и не требовала переделок после монтажа. Секционный формат удобен: линию можно собирать поэтапно и менять конфигурацию без капитальной переделки всего контура. Высота 2,5 метра помогает отделить рабочую или складскую зону от проходных участков и сделать границы территории заметными. Конструкция дисциплинирует потоки людей и транспорта: становится понятнее, где проход, где въезд, а где зона с ограниченным доступом. При этом секции можно наращивать, переносить и быстро закрывать «слабые места» линии, если на объекте меняются задачи. Ограждение подходит для:

  • строительных площадок и временных зон ограничения доступа;
  • территорий организаций, складов, производственных и хозяйственных зон;
  • участков, где требуется контроль прохода персонала и въезда транспорта.

Типовая серия для Москвы (ПП №900-ПП)

Серия ограждения: ТИП П-2,5-М-01-В1. Она относится к типовым решениям, утвержденным постановлением Правительства Москвы от 19 июля 2019 года №900-ПП «О порядке установки на территории города Москвы отдельных ограждающих конструкций». Проще говоря, это понятный «стандарт» для Москвы: заранее ясно, как будет выглядеть ограждающая линия и из каких элементов она собирается. Если на территории действуют внутренние требования по доступу и безопасности, типовую серию проще увязать с КПП, маршрутами персонала и зоной разгрузки. Тогда ограждение работает не только как визуальная граница, но и как часть логистики объекта.

Состав комплекта ограждения организации

Состав комплекта подбирается под длину периметра и задачи на объекте. Как правило, в комплект закладывают элементы для прямых участков и входных групп:

  • секции;
  • столбы;
  • крепеж;
  • распашные или откатные ворота;
  • калитку.

Для точного расчета заранее задают протяженность линии, количество въездов, ширину ворот, место калитки и требования к проездам. Если есть углы, перепады по высоте или ограничения по подъезду техники, это лучше учесть до монтажа — так меньше «подгонки» на объекте. Отдельно стоит продумать режим эксплуатации: будут ли регулярные поставки, нужна ли калитка для персонала, какое направление открывания удобнее и где оставить площадку для маневра.

Варианты установки ограждения серии П-2,5-М-01-В1

Варианты установки ограждения организации:

  1. Бетонирование столбов согласно проекту заказчика — для стабильной геометрии и долгосрочного периметра.
  2. Установка на винтовых сваях — когда важны сроки и нужно сократить земляные работы; на ряде участков упрощает монтаж.

Способ установки подбирают по условиям объекта: тип грунта, наличие коммуникаций, требования к срокам и будущая нагрузка на зону въезда. Если планируется активное движение грузового транспорта, важно заранее заложить достаточную ширину проезда и безопасные радиусы разворота. Распашные ворота подходят, если есть место для створок и понятная траектория въезда. Откатные выбирают, когда важно не занимать пространство перед проездом и сохранить свободную площадку. Калитку обычно размещают ближе к пешеходному маршруту, чтобы проход людей не пересекался с техникой. При выборе ширины ворот лучше ориентироваться на реальную технику на объекте, а не только на легковые автомобили.

Как проходит заказ ограждения, монтаж и приемка работ

Стандартный процесс обычно включает:

  • сбор вводных и выезд на замер;
  • согласование схемы периметра, ворот и калитки;
  • подготовку комплекта и доставку на объект;
  • монтаж выбранным способом и проверку работы входных групп.

После установки стоит пройтись по линии секций, убедиться в ровности и надежности креплений, а также проверить, что ворота и калитка открываются без заеданий и не мешают проезду. Перед монтажом полезно подготовить:

  • схему участка с ориентировочными размерами линии;
  • точки ворот и калитки, требования к ширине проездов;
  • информацию о перепадах высот и препятствиях вдоль периметра;
  • ограничения по доступу техники и режиму работы на объекте.

Чек-лист приемки:

  • ровность линии и отсутствие перекосов секций;
  • надежность крепежа и соединений;
  • плавную работу ворот и калитки, корректное запирание;
  • свободный проезд техники и безопасный проход людей;
  • соответствие фактической конфигурации согласованной схеме.

Серия ТИП П-2,5-М-01-В1 высотой 2,5 метра помогает быстро организовать ограждающую линию и контроль доступа на территории в Москве. Комплект собирается под задачу (секции, столбы, крепеж, ворота и калитка), а способ установки выбирается по условиям объекта: бетонирование по проекту или монтаж на винтовых сваях.

Удалить товар

Вы точно хотите удалить выбранный товар? Отменить данное действие будет невозможно.

С этим товаром покупают

Кованый забор KZ1505 недорого по цене завода заказать
Распашные въездные ворота купить для дачи по цене производителя
Забор из бетонных плит ПО6в без фартука купить с монтажом под ключ в Москве и МО

Удалить товар

Вы точно хотите удалить выбранный товар? Отменить данное действие будет невозможно.